Nội dung chính
- 1 Quy Trình Thiết Kế Nội Thất Đạt Tiêu Chuẩn Chất Lượng Quốc Tế
- 1.1 Bước 1: Phân Tích Nhu Cầu Và Mục Tiêu Của Khách Hàng
- 1.2 Bước 2: Khảo Sát Hiện Trạng, Phân Tích Không Gian Và Yếu Tố Hướng Dẫn
- 1.3 Bước 3: Xây Dựng Concept Thiết Kế, Thiết Kế Hình Ảnh 3D
- 1.4 Bước 4: Triển Khai Bản Vẽ Kỹ Thuật Trong Quy Trình Thiết Kế Nội Thất
- 1.5 Bước 5: Bàn Giao Bản Vẽ Kĩ Thuật
- 1.6 Bước 6: Thanh Toán Và Kết Thúc Hợp Đồng Thiết Kế
- 2 Lợi Ích Của Quy Trình Thiết Kế Nội Thất Đạt Tiêu Chuẩn Chất Lượng Quốc Tế
- 2.1 Đánh giá chính xác nhu cầu và yêu cầu
- 2.2 Tối ưu hóa không gian và chức năng
- 2.3 Quy trình thiết kế nội thất sáng tạo và độc đáo
- 2.4 Quy trình thiết kế nội thất mang tính thẩm mỹ cao
- 2.5 Sử dụng vật liệu và công nghệ hiện đại
- 2.6 Những Thách Thức Trong Quy Trình Thiết Kế Nội Thất Đạt Tiêu Chuẩn Chất Lượng Quốc Tế
- 2.7 Hiểu và đáp ứng nhu cầu của khách hàng
- 2.8 Tối ưu hóa không gian và chức năng
- 2.9 Cân bằng giữa thẩm mỹ và chức năng
- 2.10 Quản lý thời gian và nguồn lực
- 2.11 Đáp ứng tiêu chuẩn chất lượng quốc tế
Với sự phát triển không ngừng của ngành kiến trúc và nội thất, việc thiết kế không chỉ đơn thuần là tạo ra một không gian đẹp mắt mà còn là sự kết hợp tinh tế giữa chức năng, thẩm mỹ và tiêu chuẩn chất lượng quốc tế. Quy trình thiết kế nội thất đã trở thành một khâu quan trọng và không thể thiếu trong việc tạo ra những ngôi nhà, căn hộ và không gian sống đáng mơ ước.

Hãy cùng khám phá quy trình thiết kế nội thất đạt tiêu chuẩn chất lượng quốc tế, nơi sự sáng tạo và khéo léo hòa quyện với các yếu tố thiết kế để mang đến những không gian sống đẳng cấp và đáp ứng tối đa nhu cầu của khách hàng. Từ việc phân tích nhu cầu và yêu cầu ban đầu, nghiên cứu và thu thập thông tin, cho đến việc tạo concept và bản vẽ thiết kế ban đầu, mỗi bước trong quy trình thiết kế đều được thực hiện một cách tỉ mỉ và cẩn trọng.
Quy Trình Thiết Kế Nội Thất Đạt Tiêu Chuẩn Chất Lượng Quốc Tế
Bước 1: Phân Tích Nhu Cầu Và Mục Tiêu Của Khách Hàng
Đây là một bước quan trọng trong việc tìm hiểu mong muốn của khách hàng và đáp ứng tối đa yêu cầu của họ.

Ở giai đoạn này, các nhà thiết kế sẽ phỏng vấn khách hàng để tìm hiểu về nhu cầu và mục tiêu cụ thể mà họ muốn đạt được trong không gian sống của mình. Tất cả các yếu tố đều được xem xét kỹ lưỡng, từ phong cách sống, sở thích, yêu cầu về chức năng và không gian.
Bằng cách lắng nghe khách hàng và tương tác với họ, các chuyên gia thiết kế có thể hiểu rõ hơn những gì khách hàng thực sự muốn và cung cấp những giải pháp tốt nhất. Từ đó, đề xuất những ý tưởng sáng tạo và phù hợp để đảm bảo một không gian phản ánh cá tính và phong cách của khách hàng.
Bước 2: Khảo Sát Hiện Trạng, Phân Tích Không Gian Và Yếu Tố Hướng Dẫn
Ở bước này, chuyên gia thiết kế sẽ tiến hành khảo sát hiện trạng cấu trúc không gian, kích thước, hình dạng, v.v. Họ sẽ phân tích không gian hiện tại để hiểu rõ điểm mạnh, điểm yếu của không gian và đưa ra giải pháp phù hợp.
Ngoài ra, các chuyên gia thiết kế còn phân tích các yếu tố hướng dẫn như ánh sáng tự nhiên, hướng gió, vị trí cửa ra vào và cửa sổ. Điều này cho phép tận dụng tối đa các yếu tố tự nhiên và tạo ra một không gian sống thoáng đãng và tiện nghi.

Bằng cách khảo sát hiện trạng và phân tích không gian, các chuyên gia thiết kế có thể hiểu được tiềm năng và hạn chế của không gian, từ đó đưa ra các giải pháp thiết kế sáng tạo và đáp ứng tối đa nhu cầu của khách hàng.
Bước này không chỉ đảm bảo tính hợp lý, chức năng của không gian mà còn đảm bảo tối ưu hóa không gian sử dụng, mang lại sự thoải mái, hài lòng cho người cư dân.
Bước 3: Xây Dựng Concept Thiết Kế, Thiết Kế Hình Ảnh 3D
Đầu tiên, chuyên gia thiết kế sẽ xây dựng concept thiết kế bằng cách sử dụng thông tin từ bước phân tích nhu cầu và khảo sát hiện trạng. Concept này có thể là một ý tưởng chủ đạo, một phong cách hoặc nguồn cảm hứng cụ thể. Nó phản ánh cá tính, yêu cầu của khách hàng và tạo điểm nhấn đặc biệt cho không gian.
Sau khi hình thành ý tưởng, các chuyên gia thiết kế sẽ tiến hành thiết kế hình ảnh 3D. Đây là một công cụ quan trọng để hình dung và hiểu rõ hơn về không gian sẽ được thiết kế. Bằng cách tạo ra hình ảnh 3D chân thực, khách hàng có thể nhìn thấy mọi chi tiết, màu sắc, chất liệu và không gian tổng thể của dự án.
Thiết kế 3D mang lại cái nhìn trực quan và chân thực, giúp khách hàng có cái nhìn rõ nét về không gian sẽ được thiết kế. Đồng thời, nó giúp các chuyên gia thiết kế hiểu rõ hơn về cách các yếu tố tương tác với nhau để tạo ra một không gian sống hài hòa và tiện dụng.
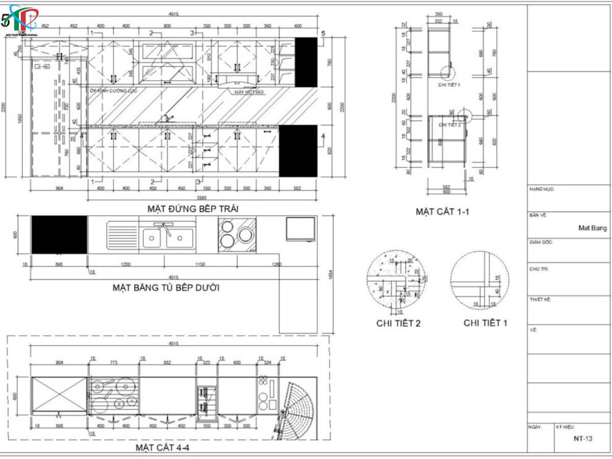
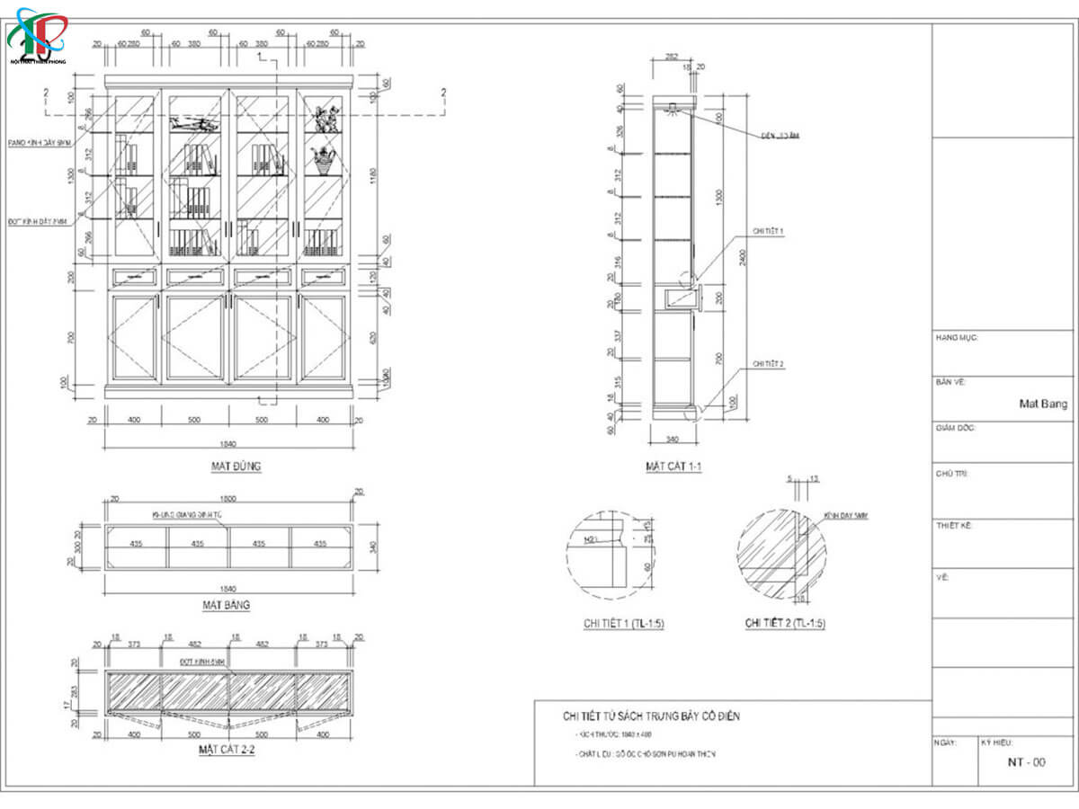
Bước 4: Triển Khai Bản Vẽ Kỹ Thuật Trong Quy Trình Thiết Kế Nội Thất
Ở bước này, nhà thiết kế triền khai bản vẽ kỹ thuật bằng cách sử dụng concept và hình ảnh 3D đã xác định ở bước trước. Những bản vẽ này bao gồm thông số kỹ thuật, kích thước, chi tiết vật liệu và các yếu tố xây dựng khác.
Việc triển khai bản vẽ kỹ thuật đòi hỏi sự tỉ mỉ và cẩn thận cao độ. Các chuyên gia thiết kế đảm bảo rằng mọi chi tiết và yếu tố kỹ thuật đều được thể hiện đúng cách để đảm bảo độ chính xác và tính khả thi của thiết kế.
Bản vẽ kỹ thuật cung cấp hướng dẫn chi tiết cho việc thực hiện thiết kế. Đây là tài liệu quan trọng giúp các nhà thầu, nhà sản xuất hiểu rõ yêu cầu và tiến hành thi công xây dựng một cách chính xác.
Triển khai bản vẽ kỹ thuật đảm bảo thiết kế nội thất đáp ứng các tiêu chuẩn chất lượng quốc tế và được thực hiện chính xác, đáng tin cậy. Các yếu tố kỹ thuật và xây dựng được đảm bảo theo đúng kế hoạch, đảm bảo không gian được thiết kế với tính hợp lý và chức năng cao.
Thông qua việc triển khai bản vẽ kỹ thuật, quy trình thiết kế nội thất đạt tiêu chuẩn chất lượng quốc tế sẽ đảm bảo rằng tất cả các yếu tố kỹ thuật và xây dựng đều được thực hiện theo đúng kế hoạch với kết quả cuối cùng tuyệt vời và đáp ứng được tối đa nhu cầu của khách hàng.
Bước 5: Bàn Giao Bản Vẽ Kĩ Thuật
Ở bước này, sau khi hoàn thiện bản vẽ kỹ thuật, chuyên gia thiết kế sẽ chuyển giao bản vẽ cho nhà thầu, nhà sản xuất và các bên khác. Bản vẽ kỹ thuật là tài liệu quan trọng để định hướng thực hiện và sản xuất các yếu tố của thiết kế nội thất.
Bản vẽ kỹ thuật cung cấp thông tin chi tiết về thông số kỹ thuật, kích thước, vật liệu và các yếu tố xây dựng khác. Điều này giúp các nhà thầu và nhà sản xuất hiểu rõ yêu cầu và thực hiện thi công một cách chính xác. Ngoài ra, bản vẽ kỹ thuật còn đảm bảo tính chính xác và thống nhất trong quá trình thực hiện thiết kế.
Việc bàn giao bản vẽ kỹ thuật đòi hỏi sự chính xác, rõ ràng. Các chuyên gia thiết kế cần đảm bảo rằng tất cả các chi tiết và yếu tố kỹ thuật được trình bày đúng cách để các bên liên quan có thể hiểu thiết kế và thực hiện một cách chính xác.
Với bước bàn giao bản vẽ kỹ thuật, quy trình thiết kế nội thất đạt tiêu chuẩn chất lượng quốc tế đảm bảo rằng mọi bên liên quan đều có thông tin cần thiết để thực hiện thiết kế một cách chính xác và hiệu quả. Bằng việc chuyển giao bản vẽ kỹ thuật, các chuyên gia thiết kế đảm bảo rằng các yêu cầu, yếu tố kỹ thuật được thực hiện theo đúng kế hoạch và đáp ứng tối đa nhu cầu của khách hàng.
Bước 6: Thanh Toán Và Kết Thúc Hợp Đồng Thiết Kế
Ở bước này, sau khi hoàn thành bản vẽ kỹ thuật và bàn giao, các bên thanh toán cho công việc thiết kế nội thất đã thực hiện. Việc thanh toán có thể được thực hiện theo từng đợt đã thỏa thuận trước hoặc theo tiến độ công việc. Quá trình thanh toán này đảm bảo rằng các nhà thiết kế và các bên liên quan nhận được giá trị xứng đáng với tác phẩm đã hoàn thành của họ.

Sau khi hoàn tất thanh toán, hợp đồng thiết kế chính thức chấm dứt. Các bên xem xét, đánh giá lại quá trình thiết kế để đảm bảo đáp ứng mọi yêu cầu và chất lượng đạt tiêu chuẩn. Để chuẩn bị đến công đoạn thi công.
Lợi Ích Của Quy Trình Thiết Kế Nội Thất Đạt Tiêu Chuẩn Chất Lượng Quốc Tế
Thiết kế nội thất theo quy trình đạt tiêu chuẩn quốc tế mang lại nhiều lợi ích và được đánh giá cao trong ngành công nghiệp thiết kế.
Đánh giá chính xác nhu cầu và yêu cầu

Một quy trình thiết kế nội thất tuân thủ các tiêu chuẩn chất lượng quốc tế bắt đầu bằng việc đánh giá chính xác nhu cầu và yêu cầu của khách hàng. Điều này giúp các chuyên gia thiết kế hiểu được khách hàng muốn gì và đảm bảo thiết kế đáp ứng được yêu cầu của họ.
Tối ưu hóa không gian và chức năng

Quá trình này đảm bảo tối ưu hóa không gian nội thất và làm cho nó phù hợp với mục đích sử dụng. Các nhà thiết kế sẽ xem xét các yếu tố như luồng giao thông, ánh sáng tự nhiên, tính tiện ích và tiết kiệm không gian để tạo ra không gian nội thất hài hòa và tiện dụng.
Quy trình thiết kế nội thất sáng tạo và độc đáo

Với quy trình này, các chuyên gia thiết kế sử dụng khả năng sáng tạo và độc đáo của mình để tạo ra các giải pháp thiết kế độc đáo và ấn tượng. Sự kết hợp giữa sáng tạo và chất lượng theo tiêu chuẩn quốc tế tạo nên những không gian nội thất độc đáo và thu hút.
Quy trình thiết kế nội thất mang tính thẩm mỹ cao

Quy trình thiết kế nội thất đạt tiêu chuẩn chất lượng quốc tế, đảm bảo yếu tố thẩm mỹ được xem xét và thể hiện trong thiết kế. Từ việc lựa chọn màu sắc, chất liệu đến cách bố trí, trang trí, mọi yếu tố đều được cân nhắc để tạo nên một không gian nội thất hài hòa và có tính thẩm mỹ.
Sử dụng vật liệu và công nghệ hiện đại

Công nghệ và vật liệu hiện đại, tiên tiến nhất được sử dụng trong quá trình này để đảm bảo chất lượng và hiệu quả thiết kế.
Những Thách Thức Trong Quy Trình Thiết Kế Nội Thất Đạt Tiêu Chuẩn Chất Lượng Quốc Tế
Trong quá trình thiết kế nội thất đạt tiêu chuẩn chất lượng quốc tế, có một số thách thức mà các chuyên gia thiết kế phải đối mặt. Những thách thức này là gì? Bạn hãy kiên nhẫn đọc tiếp phần dưới đây:
Hiểu và đáp ứng nhu cầu của khách hàng

Một thách thức quan trọng là hiểu rõ và đáp ứng đúng yêu cầu của khách hàng. Đôi khi khách hàng có những yêu cầu phức tạp hoặc không rõ ràng. Để vượt qua thách thức này, các nhà thiết kế phải chủ động tiếp cận khách hàng, lắng nghe họ và tìm hiểu sâu những gì họ thực sự muốn. Giao tiếp tốt và khả năng phân tích yêu cầu của khách hàng là chìa khóa để vượt qua thách thức này.
Tối ưu hóa không gian và chức năng

Một thách thức khác trong quy trình thiết kế nội thất là tối ưu hóa không gian và chức năng nội thất. Không gian hạn chế hoặc các yêu cầu chức năng đặc biệt có thể làm cho việc thiết kế trở nên phức tạp. Để giải quyết thách thức này, các nhà thiết kế cần tìm ra các giải pháp sáng tạo và linh hoạt để tối đa hóa không gian sẵn có và đáp ứng chức năng cần thiết.
Cân bằng giữa thẩm mỹ và chức năng

Một thách thức quan trọng khác là tìm ra sự cân bằng giữa thẩm mỹ và chức năng trong thiết kế. Trong một số trường hợp, các yêu cầu về thẩm mỹ và chức năng có thể xung đột với nhau hoặc ngược lại. Để vượt qua thách thức này, chuyên gia thiết kế cần tìm ra các giải pháp sáng tạo để kết hợp hoặc tối ưu hóa cả hai yếu tố này.
Quản lý thời gian và nguồn lực

Một quy trình thiết kế nội thất đáp ứng các tiêu chuẩn chất lượng quốc tế đòi hỏi phải quản lý thời gian và nguồn lực hiệu quả. Các dự án có thể có thời hạn chặt chẽ và nguồn lực hạn chế. Để vượt qua thách thức này, các chuyên gia thiết kế phải lập kế hoạch cẩn thận, ưu tiên công việc quan trọng và phân bổ nguồn lực một cách khôn ngoan.
Đáp ứng tiêu chuẩn chất lượng quốc tế

Thử thách cuối cùng là đáp ứng tiêu chuẩn chất lượng quốc tế trong quá trình thiết kế. Điều này đòi hỏi các chuyên gia thiết kế phải nắm vững các tiêu chuẩn, quy định quốc tế và áp dụng chúng vào thiết kế.
Dự án liên quan:
-
Chiêm Ngưỡng Vẻ Đẹp Ấn Tượng Của Các Tông Màu Trong Thiết Kế Nội Thất
-
Bất Ngờ Trước Những Mẫu Thiết Kế Nội Thất Nhà Cấp 4 Vừa Đẹp Vừa Tối Ưu Chi Phí
-
Rước Tài Lộc Vào Nhà Với Tranh Treo Phòng Bếp Hợp Phong Thủy
-
Tránh Ngay 3 Sai Lầm Khi Treo Gương Phòng Khách Theo Phong Thủy
-
Vị Trí Đặt Gương Trong Phòng Ngủ Mang Đến May Mắn Tài Lộc Không Phải Ai Cũng Biết
-
Đặt Nhà Vệ Sinh Trong Phòng Ngủ Theo Phong Thủy Như Thế Nào Để Tránh Tai Ương?
-
Tránh Ngay Những Đại Kị Khi Kê Giường Ngủ Theo Phong Thủy
-
Phong Thủy Bàn Làm Việc: Cách Đặt Bàn Làm Việc Theo Phong Thủy Hút Tài Lộc
-
Cách Đặt Giường Ngủ Hợp Phong Thủy Giúp Bạn Có Giấc Ngủ Ngon Và Thu Hút Tài Lộc
-
Khám Phá Những Mẫu Thiết Kế Nội Thất Nhà Ống Đẹp – Hiện Đại Và Tiện Nghi
-
Bật Mí Cách Thiết Kế Nội Thất Căn Hộ Chung Cư 68m2 Tối Ưu Hóa Không Gian Sống
-
Mãn Nhãn Với Những Căn Hộ Mang Phong Cách Thiết Kế Nội Thất Đông Dương
-
Những Mẫu Nội Thất Nhà Ống Tân Cổ Điển Thu Hút Mọi Ánh Nhìn
-
Phong Cách Color Block Trong Nội Thất: Bước Đột Phá Trong Kết Hợp Màu Sắc
-
Bật Mí Mẹo Thiết Kế Chung Cư Phong Cách Indochine Đẹp Hết Nước Chấm
10 chất vàng Thiên Phong
- Sản xuất trực tiếp, giá rẻ hơn thị trường 30%
- Chất lượng cao cấp nhờ quy trình tuyển chọn nguyên liệu khắt khe
- Sản phẩm tinh xảo, sắc nét
- Sáng tạo tối đa, công năng sử dụng tối ưu
- Nhanh, Chính xác, Đúng hẹn
- Dịch vụ chuyên nghiệp, đặt khách hàng làm trung tâm.
- Đội ngũ kiến trúc sư giàu kinh nghiệm hỗ trợ tư vấn chuyên sâu
- Bảo hành 12 tháng, bảo trì trọn đời
- Tặng phí thiết kế khi thi công tại Nội Thất Thiên Phong
- Khách hàng được giảm giá 10% cho đơn hàng lần 2
























